Description
 
Description
Images and Renderings
Floorplans
Virtual Tour
Home » State Street Property » Description
45 State Street
State Street
State Street Rendering
Asking Price: $3,900,000

45 State Street, located on a lovely, quiet tree-lined residential block in the heart of historic Brooklyn Heights, is a four-story red brick building that has been meticulously redesigned and renovated into a contemporary loft-like home. Open exposures in every direction provide abundant light and air as well as charming city or garden views from every window.

Among the many special features within this artfully planned new home are an attached garage, two terraces, wood-burning fireplace, hardwood floors, wood balusters, windowed stairwell, energy efficient double-hung wooden windows, dumb waiter, top-of-the-line kitchen appliances, hydro-air A/C and heating systems and high-end fixtures and finishes throughout.

Cellar:
The cellar is divided in half with one room containing the building mechanicals and the other providing ample space for storage.

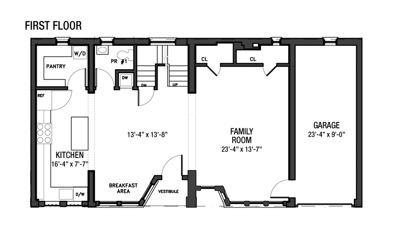
First Floor: Kitchen and Family Room
This main entry level contains an expansive chef’s kitchen complete with large breakfast area and separate pantry/laundry room at one end of the open floor layout and a family room at the other end.

The kitchen, designed by Bilotta, features cabinetry by Aircraft with frameless, flat panel doors in quarter sawn walnut with a "Mink" stain. The glass countertop, "Crystal Beige" in color, is 3 cm thick with an eased edge; the sink and faucets are from Franke. The cook top, oven, wall hood, dishwasher, refrigerator, and microwave are all stainless steel top-of-the-line appliances by Miele, Sub-zero, and GE that complement the kitchen’s sleek, contemporary design.

The family room has two large closets, ample wall space for the largest size flat-screen TV, and a door that opens directly to the attached garage. Perfect for casual living, this floor also contains a powder room with hardwood floors, Kohler sink, and polished nickel fixtures. Next to the handsome staircase situated between the kitchen and family room there is a dumbwaiter to deliver food to the dining room on the second floor.

Second Floor: Living and Dining Rooms
Two large terraces created at opposite ends of the dramatic second floor accentuate the open design of this spacious living/dining floor and further enhance the rooms’ natural flow of air and light. The living room and dining room each open to terraces (finished in blue stone) through classic French doors. The living room also features a wood-burning fireplace framed by a handsome wood mantle. The dumbwaiter between the kitchen and the second floor makes easy work of serving food in the dining room or on the terrace. This floor also contains a powder room off the dining room.

Third Floor: Master Bedroom
The entire third floor is devoted to the grand master suite containing a large bedroom with separate sitting area suitable for a home office, exercise room, or private retreat. Just outside the bedroom there is a huge walk-in closet/dressing room, and a generously proportioned master bathroom that has double sinks plus separate tub and shower stall. This bathroom is in beige limestone tile and features Kohler sinks and tub and Dornbracht Tara classic polished nickel fixtures.

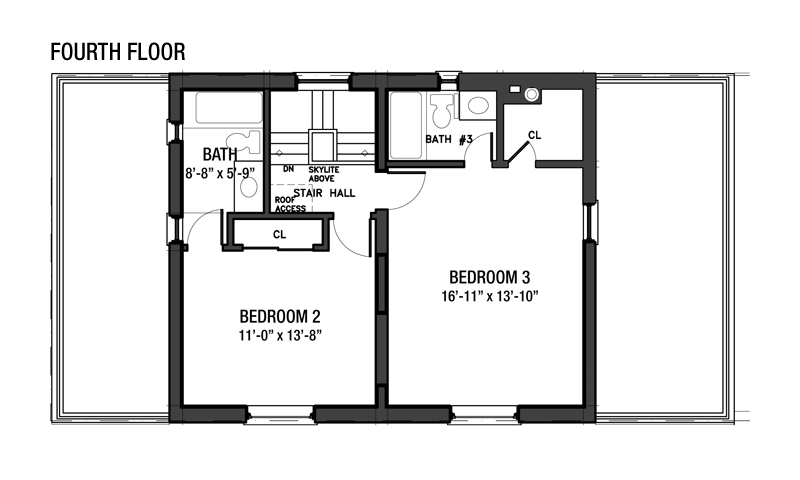
Fourth Floor: Second & Third Bedrooms
The two additional bedrooms of the third floor each have an en suite bathroom with tub, vanity sink, and beige basket weave beige marble tile floor.

House Layout:
Bedrooms: 3
Bathrooms: 3
Powder Rooms: 2
Eat-in Kitchen
Living Room
Dining Room
Family Room
Terraces: 2

Specifications:
24' 8" x 48' 3" First floor including garage
24' 8" x 30' Second floor and up
22’ 5” x 27’ 10” Cellar
Lot Dimensions: 24' 8” x 125'
Interior Area: 3,420 sq. ft. (+/-)
Exterior Area:
East Terrace (off the Dining Room) - 206 sqft
West Terrace (off the Living Room) - 243 sqft

Appliances & Plumbing Fixtures
Miele Electric Cooktop w/ 8 burners
Miele Stainless Steel self-clean oven
Miele Stainless steel Hood
Miele Stainless Steel Excella Series Dishwasher
36” Sub –Zero Refrigerator
Miele Nespress Stainless Steel Coffee System
GE Profile Spacemaker Microwave
Franke Stainless Steel Sink
Franke chrome strainer basket
Franke Faucet w/ Side sprayer (polished chrome)