|
| Home » Hicks Street Property » Description |
| 314 Hicks Street |
Asking Price: $6,200,000
314 Hicks Street is a newly constructed red brick single-family residence--a modern reinterpretation, in early Greek revival style, of the classic townhouses that are found throughout the historic neighborhood of Brooklyn Heights. The traditional layout features three entrances, one a formal parlor floor entry and the others front and back entries at the garden level. The updated design provides each of the five bedrooms with a full en suite bathroom; the home has two additional powder rooms as well. Open exposures in three directions provide abundant light and air and charming city or garden views from every window.
|  | | Special features include an elevator serving all five levels, two wood-burning fireplaces, hardwood floors, high ceilings, energy-efficient double-hung wooden windows, central air-conditioning, hydro-air heating with built-in humidification and air filtration systems, top-of-the-line kitchen appliances, high-end fixtures and finishes, seasonal river views, landscaped garden, and space for off-street parking.
Cellar: Mechanicals and Storage Along with mechanical and elevator rooms the cellar features two large rooms offering abundant storage capacity. The generous 8 ½’ ceiling height provides the potential to create additional living space for playroom, gym, wine cellar, game or media rooms.
Garden Floor: Kitchen and Family Room The front garden level entry opens to the staircase hall foyer containing coat closet and bench seating. An expansive eat-in kitchen to the left off the entry foyer features two windows facing east onto Hicks Street.
Designed by Bilotta in a timeless and classic style, the kitchen features hardwood floors and traditional linen white cabinetry with beaded inset and flat panel doors. The countertops are Carrera marble with a white glass subway tile backsplash behind the sink and stove. The top-of-the-line stainless steel Viking and GE appliances include a 36” range, professional hood, dishwasher, refrigerator, and microwave. The stainless steel sink and polished chrome faucets are from Franke.
The vaulted passage that separates the kitchen from the family room contains a powder room and access to the elevator. The stair hall also opens through French doors to the family room, a large room with windows facing south to State Street and west to the private garden. A second set of French doors, directly opposite the set from the stair hall, opens directly to the landscaped garden with bluestone paving and a private off-street parking space. The two facing sets of French doors provide abundant natural light to both the family room and the stair hall.
Parlor Floor: Living Room and Formal Dining Room The main entry to the home is found at the parlor floor level. This main entry opens to the stair hall foyer. Directly to the left, through French doors, is the traditional, beautifully proportioned formal dining room with two windows looking east over Hicks Street and a third south over State Street.
The vaunted passage between the dining and living rooms contains access to the elevator and a powder room with Kohler sink, and polished nickel Dornbracht faucet.
The passage opens to the living room which is also accessible through French doors from the stair hall. The living room is light and airy with three windows facing west over the garden and two facing south over State Street and features a wood-burning fireplace.
Second Floor: Master Bedroom Suite The second floor is devoted to a grand master suite comprised of an expansive bedroom with south and west exposures and a wood-burning fireplace. The en suite bathroom is designed with walls of honed Carrera marble field tile, the floor of polished Carrera marble with a black dot basket weave pattern, plus wood vanity with double Kohler sinks, white Carrera marble countertop, Kohler bathtub and a separate shower stall. All fixtures are polished nickel from Perrin and Rowe.
The master hall, with elevator access, also leads to an enormous walk-in closet that can also serve as a dressing room. Next to the dressing room there is a private corner study that has windows facing east and south.
Third Floor: Second and Third Bedrooms The third floor contains the second and third bedrooms, one facing east to Hicks Street and the other west overlooking the garden. Each bedroom has a very generous walk-in closet and an en suite bathroom with ceramic tile floor, wood vanity, and white Carrera marble countertop. This floor also contains the washing machine and dryer located off the stair hall.
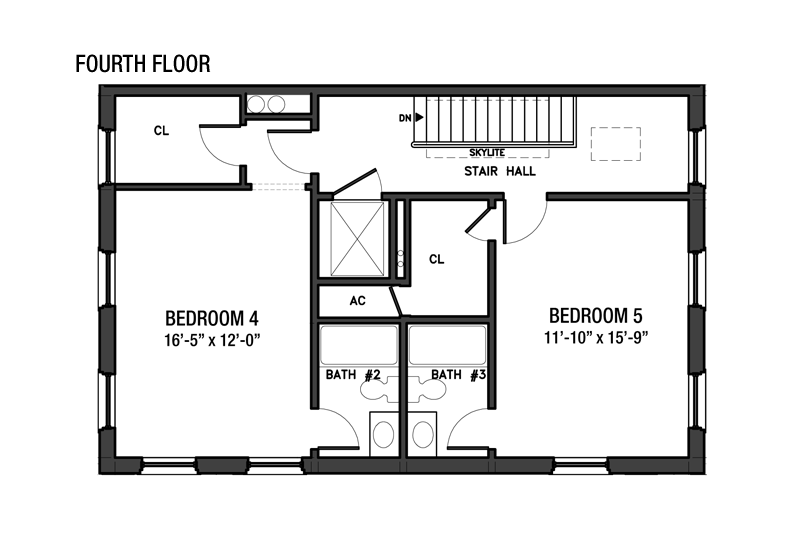
Fourth Floor: Fourth and Fifth Bedrooms The fourth floor contains the fourth and fifth bedrooms, one facing east to Hicks Street and the other west overlooking the garden. Each bedroom has a very generous walk-in closet and an en suite bathroom with ceramic tile floor, wood vanity, and white Carrera marble countertop. This top floor features sky lights above the stairway that bring in additional natural light.
House Layout: Bedrooms: 5 Full Bathrooms: 5 Powder Rooms: 2 Living Room Formal Dining Room Family Room Eat-In Kitchen Study
Kitchen Spec Sheet: Linen Bilotta collection Cabinetry Appliances & Plumbing Fixtures 36” Self-cleaning Viking Range, Sealed burners 36” Viking Wall Hood Viking interior ventilator 36” Viking Hood Backsplash 36” Viking Pro Refrigerator Viking Pro Dishwasher GE Profile Spacemaker Microwave Franke Stainless Steel Sink Franke Chrome Strainer Basket Franke Faucet w/ Side Spayer, Polished Chrome Countertops White Carrera marble with Dupont Edge |
|